© All rights reserved. Powered by VLThemes.

Mikis Theodorakis 30

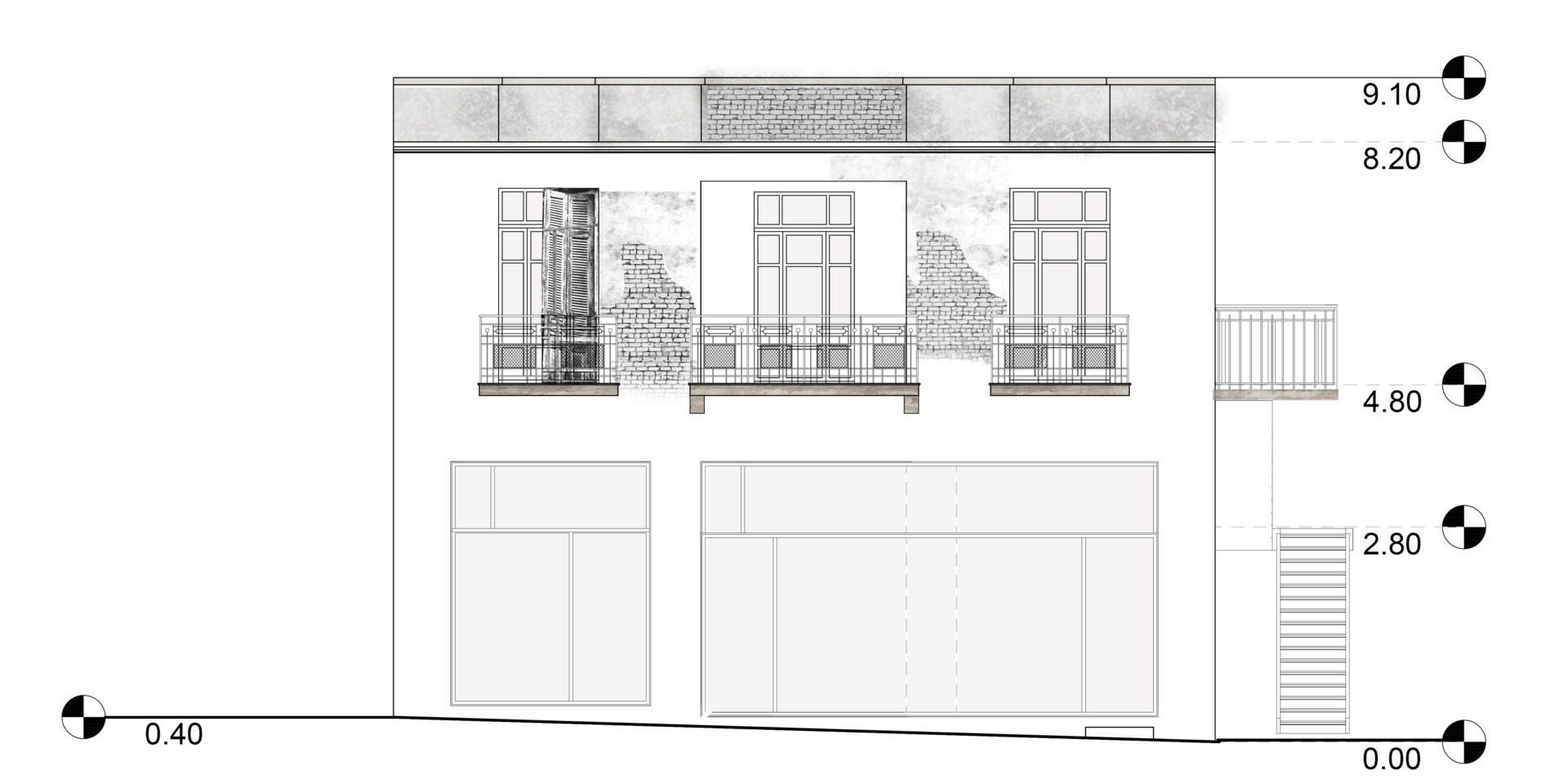
Κτήριο του 1931 επί της Λεωφόρου Μίκη Θεοδωράκη.Αποτελείται από 2 καταστήματα στο ισόγειο και ο χώρος κατοίκησης εκτείνεται στον πρώτο όροφο και στο βάθος του οικοπέδου. .

Building of 1931 on Mikis Theodorakis Avenue. It consists of 2 shops on the ground floor and the living space extends on the first floor and the back of the plot.

Share this:
Top